Nuove abitazioni in arrivo a Verdello! Ultimo TRILOCALE disponibile al primo piano. palazzina E

€ 235.000

Dettagli

Riferimento
Riferimento
600716
Tipologia
Tipologia
Appartamento
Comune
Comune
Verdello
Contratto
Contratto
in vendita
Superficie
Superficie
95 m2
Locali
Locali
3
Camere
Camere
2
Altre Stanze
Altre Stanze
2
Cucina
Cucina
A vista
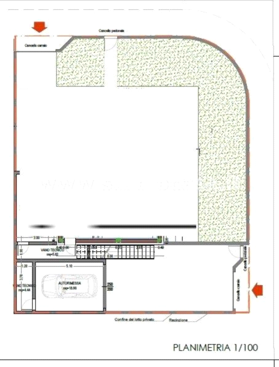
Box
Box
Singolo
Posti Auto
Posti Auto
1
Giardino
Giardino
Privato
Condizioni
Condizioni
In Costruzione
Classe
Classe
Signorile
Anno Costruzione
Anno Costruzione
2024
Piano
Piano
1
Vista
Vista
Giardino
Riscaldamento
Riscaldamento
Autonomo
Impianto Riscaldamento
Impianto Riscaldamento
A Pavimento
Alimentazione Riscaldamento
Alimentazione Riscaldamento
Fotovoltaico
Infissi
Infissi
Triplo Vetro - PVC
Classe Energetica
Classe Energetica
A4 - L 90/2013

Descrizione

Se cerchi un appartamento funzionale, luminoso e moderno, questa è la soluzione che fa per te. Il TRILOCALE ha un soggiorno spazioso con cucina a vista, due camere da letto, doppi servizi e un balcone ampio, perfetto per goderti il sole o un po' di relax all'aperto. In più, avrai a disposizione un box auto privato e una piccola area esterna esclusiva. La casa è progettata per garantirti indipendenza, comfort e uno stile di vita pratico, con materiali di alta qualità e ottima efficienza energetica. Il Residence La Rotonda è il posto ideale per chi cerca eleganza e semplicità: un design moderno che sa stupire con linee pure e uno stile minimalista. Ogni appartamento è pensato per chi apprezza la qualità senza rinunciare a un'atmosfera accogliente e pratica. Disponiamo anche appartamenti al primo piano con terrazzo: per chi sogna di avere una vista panoramica e tanto spazio all'aperto. Scegli la soluzione che meglio si adatta al tuo stile di vita e alle tue esigenze! L’Essenza del Progetto: Il design contemporaneo si fonde perfettamente con il verde circostante, creando un'atmosfera rilassante che ti permette di vivere in sintonia con la natura. Ogni villa e appartamento ha un giardino privato dove potrai goderti la tranquillità, e, su richiesta, puoi personalizzare gli spazi esterni con pergolati moderni per aggiungere zone d'ombra funzionali e di tendenza. Un rifugio esclusivo che ti farà vivere ogni giorno come una vera esperienza, dove comfort e bellezza si incontrano. E se hai il tuo appartamento da vendere ? Non ti preoccupare, possiamo valutartelo grazie al nostro esclusivo metodo di valutazione scientifico di mercato + indirizzandoti alla vendita di casa tua in maniera sicura, a un prezzo garantito e senza troppi stress perché vendere e comprare con noi è tutta un'altra cosa ...... 035/87.26.05 Per scoprire tutte le nostre proposte visita il sito: www.studiocasaverdello.it

Caratteristiche

  •  Balcone
  •  Terrazzo
  •  Cantina
  •  Mansarda
  •  Ripostiglio
  •  Lavanderia
  •  Camino
  •  Idromassaggio
  •  Accesso disabili
  •  Porta Blindata
  •  Allarme
  •  Cancello Elettrico
  •  Videocitofono
  •  Ascensore
  •  Piscina
  •  Campo da tennis
  •  Palestra